Zur Navigation wechseln Zum Inhalt wechseln Zum Footer wechseln

Modernes Haus in Petridia (Emba), Paphos

ImmoNr
176
Objektart
Haus
Objekttyp
Einfamilienhaus
Vermarktungsart
Kauf
Ort
Empa
Land
Zypern
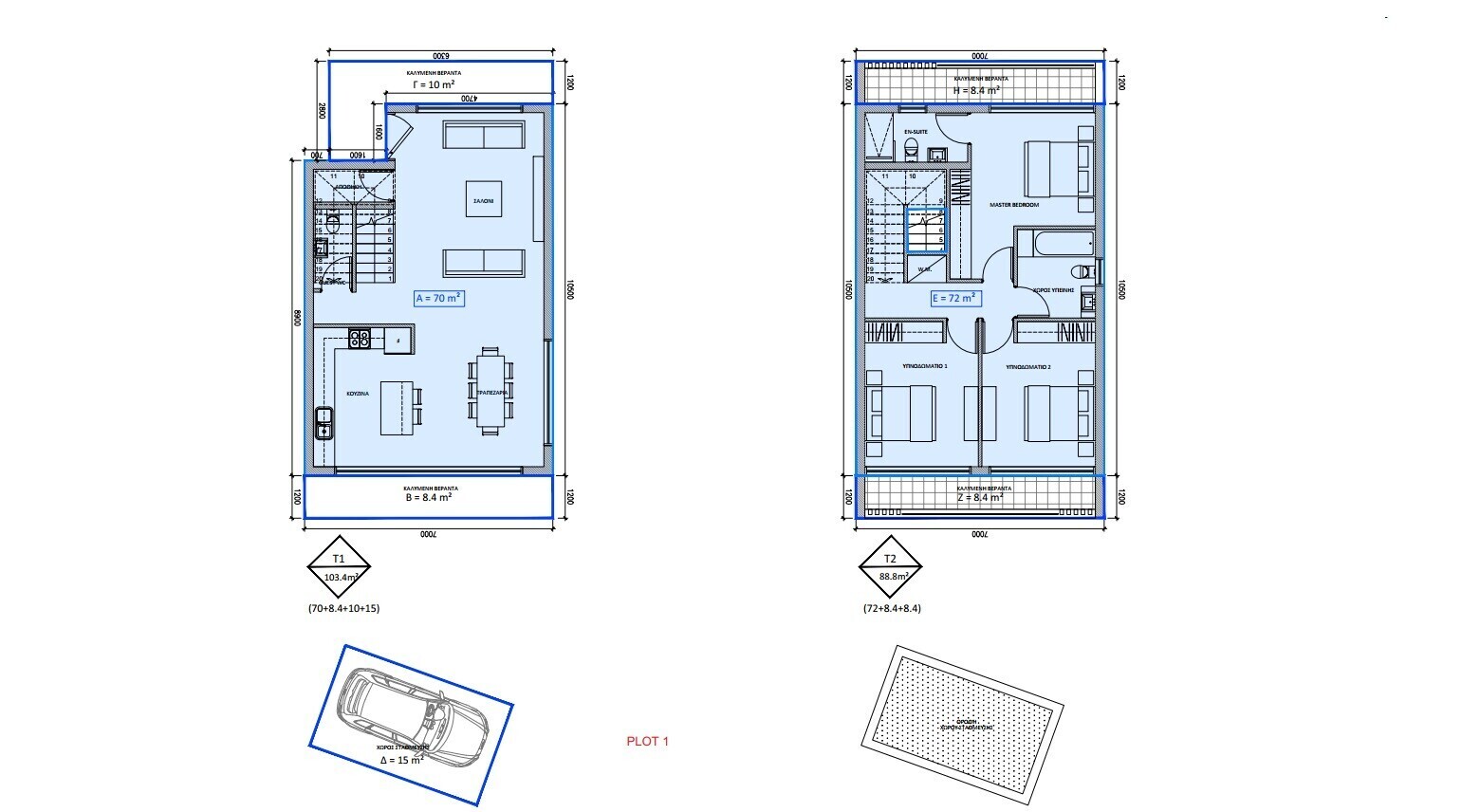
Wohnfläche
ca. 142 m²
Grundstücksgröße
ca. 300 m²
Anzahl Zimmer
4
Anzahl Schlafzimmer
3
Anzahl Badezimmer
2
Anzahl sep. WC
1
Anzahl Balkone
1
Anzahl Terrassen
1
Balkon
Ja
Befeuerung
Elektro
Stellplätze
2 Carports
Terrasse
Ja
Kaufpreis
462.000,00 €

Zur Immobilie

In begehrter Lage von Petridia erwartet Sie dieses exklusive Einfamilienhaus (Baujahr 2027), das luxuriöse Ausstattung mit zeitgemäßer Architektur und einem durchdachten Raumkonzept verbindet. Auf einem ca. 300 m² großen Grundstück bietet die Immobilie ca. 142 m² Wohnfläche und damit den idealen Rahmen für Familien, Paare oder anspruchsvolle Eigennutzer, die Wert auf Komfort, Stil und Qualität legen.

Der Wohnbereich präsentiert sich offen und einladend: Die moderne, offen gestaltete Einbauküche fügt sich harmonisch in den Wohn- und Essbereich ein und schafft eine kommunikative Atmosphäre – perfekt für den Alltag wie auch für Gäste. Insgesamt stehen Ihnen 4 Zimmer zur Verfügung, darunter 3 gut geschnittene Schlafzimmer, die vielseitig nutzbar sind – ob als Kinderzimmer, Gästezimmer oder Homeoffice.

Zwei hochwertig ausgestattete Badezimmer unterstreichen den gehobenen Anspruch dieser Immobilie und bieten Komfort auch bei mehreren Personen im Haushalt. Außenbereiche wie Terrasse und Balkon erweitern den Wohnraum nach draußen und laden zu entspannten Stunden im Freien ein – vom Frühstück an der frischen Luft bis zum Ausklang des Tages.

Dieses luxuriöse Einfamilienhaus in Petridia vereint Neubauqualität, attraktive Flächen und ein modernes Wohngefühl – eine hervorragende Gelegenheit für alle, die ein stilvolles Zuhause zum Kauf suchen.

– Einbauküche
– Offene Küche
– Terrasse
– Balkon
– 2 Carports
– Elektro-Heizung/-Befeuerung

Nutzungsart
Wohnen

Das Einfamilienhaus befindet sich in Empa, einer gefragten und gewachsenen Wohnlage im Westen Zyperns. Die Umgebung ist geprägt von ruhigen Wohnstraßen, Einfamilienhäusern und einer angenehmen, gepflegten Nachbarschaft – ideal für alle, die Wert auf Privatsphäre und ein entspanntes Wohnumfeld legen.

Empa überzeugt durch die gelungene Kombination aus naturnahem Wohnen und guter Erreichbarkeit: Einkaufsmöglichkeiten für den täglichen Bedarf, gastronomische Angebote sowie weitere Dienstleister sind in der näheren Umgebung verfügbar. Gleichzeitig profitieren Sie von einer kurzen Anbindung an die Küstenregion sowie an das Stadtleben der umliegenden Orte, wodurch sowohl Freizeitaktivitäten als auch berufliche Wege komfortabel gestaltet werden können.

Die Lage eignet sich besonders für Familien und Paare, die eine ruhige Wohnatmosphäre suchen, ohne auf eine alltagstaugliche Infrastruktur und eine gute regionale Anbindung verzichten zu wollen.

Preis : ab 462.000€ (ohne Pool) bis 750.000€ (inkl. Pool)

Sehr geehrte Interessentinnen und Interessenten,

wir freuen uns, Sie bei Ihrer Immobiliensuche in Zypern begleiten zu dürfen. Durch unsere Zusammenarbeit mit fünf etablierten Maklerbüros vor Ort erhalten Sie Zugang zu mehr als 300 ausgewählten Objekten – von modernen Neubauwohnungen bis hin zu charmanten Villen in bester Lage.

Unser Service für Sie – kompetent, transparent und persönlich
• Rechtssichere Kaufbegleitung inklusive Übersetzung aller Unterlagen ins Deutsche
• Vielfältige Immobilienangebote in Paphos, Limassol und Larnaca – darunter 2, 3 und 4 Zimmerwohnungen, Häuser und Villen
• Individuelle Beratung bei der Auswahl Ihrer Wunschimmobilie
• Unterstützung bei der Baufinanzierung – sowohl in Deutschland als auch in Zypern
• Vermietungsservice über Airbnb inklusive Reinigung, Gästebetreuung und kompletter Organisation – Sie entscheiden, wir übernehmen den Rest
• Einrichtung Ihrer erworbenen Wohnung mit passenden Möbeln – abgestimmt auf Stil, Budget und Nutzungskonzept

Wir sind in Deutschland ansässig und arbeiten eng mit unseren zypriotischen Partnern zusammen,
um Ihnen einen reibungslosen und transparenten Ablauf zu garantieren.

Unser Versprechen:
Alle Immobilien sind provisionsfrei für Käufer und unser Service ist für Sie kostenfrei.



Besuchen Sie unsere Website für aktuelle Angebote
www.safeselect.de/immobilien-zypern

Bitte beachten Sie
Nicht alle verfügbaren Objekte sind online gelistet – sprechen Sie uns gerne direkt an
Wir freuen uns darauf, Sie persönlich bei Ihrer Immobiliensuche zu unterstützen

Mit freundlichen Grüßen
Safe Select Immobilien und Baufinanzierung

Ihr Ansprechpartner

Herr Arwid Walker

Safe Select

Tel.:
+49 1511 7 888 008
E-Mail:
immobilien@safeselect.eu

Biberacher Str. 18
88444 Ummendorf

Weitere Immobilien

Coral Bay

Exklusives Townhouse direkt am Hauptstrand von Coral Bay in Zypern – 350m

ImmoNr
72
Objektart
Haus
Objekttyp
Strandhaus
Vermarktungsart
Kauf
Anzahl Zimmer
3
Anzahl Schlafzimmer
2
Grundstücksgröße
ca. 180 m²
Wohnfläche
ca. 130 m²

Pegeia

Haus mit Meerblick und Pool in Zypern – Pafos – Pegeia

ImmoNr
84
Objektart
Haus
Objekttyp
Ferienhaus
Vermarktungsart
Kauf
Anzahl Zimmer
3
Anzahl Schlafzimmer
2
Grundstücksgröße
ca. 183 m²
Wohnfläche
ca. 102 m²

Kissonerga

Exclusive Villa 50m vom Meer mit Pool in Zypern – Paphos – Kissonerga

ImmoNr
95
Objektart
Haus
Objekttyp
Villa
Vermarktungsart
Kauf
Anzahl Zimmer
4
Anzahl Schlafzimmer
3
Grundstücksgröße
ca. 400 m²
Wohnfläche
ca. 140 m²

Chlorakas

Haus in Zypern – Paphos – Erste Meereslinie mit Panorama-Meerblick

ImmoNr
123
Objektart
Haus
Objekttyp
Villa
Vermarktungsart
Kauf
Anzahl Zimmer
7
Anzahl Schlafzimmer
4
Grundstücksgröße
ca. 538 m²
Wohnfläche
ca. 444 m²

Pegeia

Freistehende Villa in Zypern – Paphos, Pegia mit Panoramablick

ImmoNr
124
Objektart
Haus
Objekttyp
Villa
Vermarktungsart
Kauf
Anzahl Zimmer
4
Anzahl Schlafzimmer
3
Grundstücksgröße
ca. 500 m²
Wohnfläche
ca. 140 m²

    Ihre Anfrage zu der Immobilie „Modernes Haus in Petridia (Emba), Paphos“ (176)

    * Pflichtfelder